1-bedroom Single Family for rent at 461 GREEN Road Unit# 424 Stoney Creek, Ontario L8E0L5

461 GREEN Road Unit# 424 Stoney Creek, Ontario L8E0L5 Stoney Creek
C$1800\mo
C$450\wk
Verified
  • 1 Bathroom
  • 1 Bedroom
  • Apartment - Single Family (not-specified)
  • /
  • Available from: Ask Landlord
Sign up to access landlord contact details

Property Summary

Property Type
Single Family
Building Type
Apartment
Neighbourhood Name
Title
Condominium
Parking Type
Underground, None
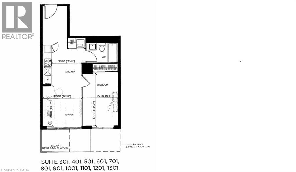
Square Footage
585 sqft sqft
Be the first to live in this brand new (2026), one-bedroom condo designed with style, comfort and convenience in mind. Inside the until, stainless steel appliances, laminate floors, beautiful quartz countertops, and floor-to-ceiling windows are just some of the key highlights. Enjoy underground parking with keyless fob access! One parking spot and one locker are included. This is a Smart Building, with DeSantis Smart Suite - including integrated lighting, heating/cooling control, security control, digital door lock, automated parcel locker, in-suite voice and touch enabled digital wall pad. The amenities include a stunning 6th-floor terrace with BBQs, a media lounge, a bike storage room, club room with a chef's kitchen, an art gallery and art studio. Conveniently located with ease of access to the highway, shopping, the lake, Hamilton Go and trails -this unit is ideal for young professionals and commuters alike. Don’t be TOO LATE*! *REG TM. RSA. (70033184)

Similar Properties

LogoLogo
Paypal SSL Rating PCI Logo